
Sofieroveien 4 - 12
Atriumhus med uteplasser i særklasse
Drømmer du om en bolig som kombinerer moderne arkitektur, solrike uteplasser og skogsnær beliggenhet? Her får du nettopp det – unike atriumshus plassert i et attraktivt område, med ferdig uteområde og oppgradert standard.
Høydepunkter
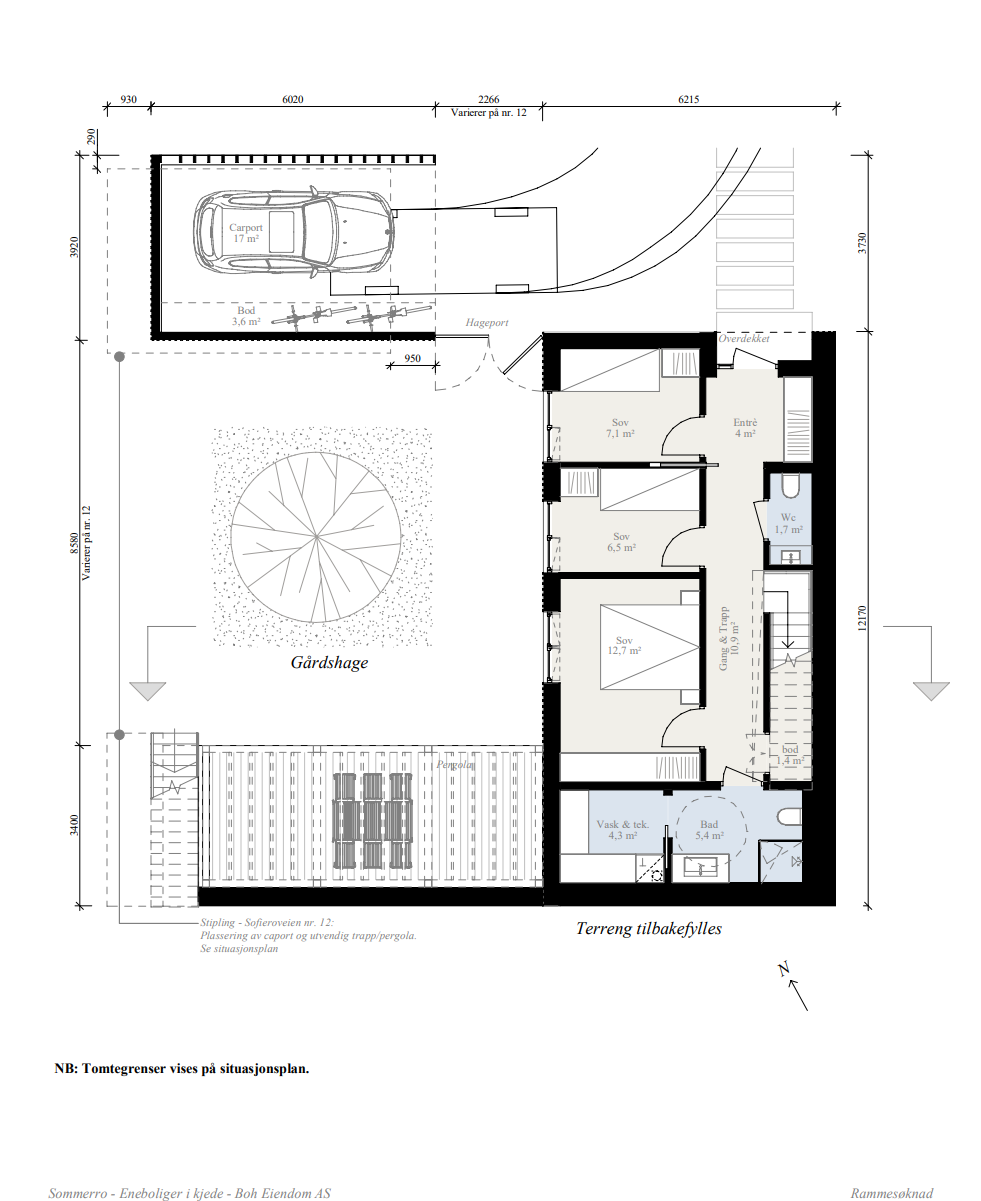
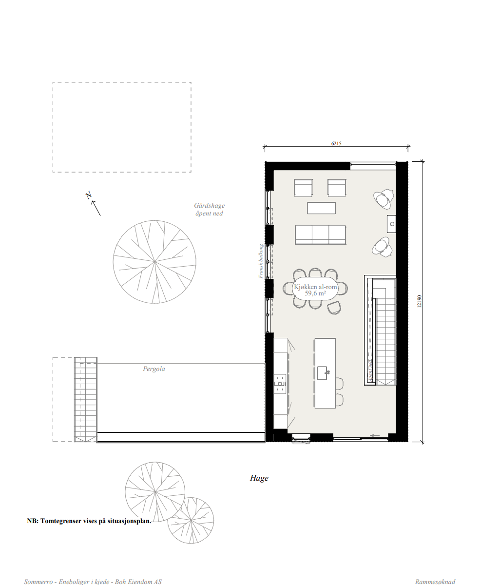
- Boligtype: Enebolig i prosjektform – hver bolig er ca. 122 m² intern bruksareal (BRA-i), ca. 144 m² totalt inkl. uteareal.
- Soverom: 3 romslige soverom som gir god fleksibilitet for familie, gjester eller hobbyrom.
- Beliggenhet: Sofieroveien 4-12 ligger høyere opp i feltet, med nært til turvei, vann, badebrygge og grønne områder – perfekt for friluftsliv og aktiv hverdag.
- Uteplasser: Hver bolig leveres med utvendig terrasse under pergola og opparbeidet hageområde – ferdig levert så du kan ta uteplassen i bruk umiddelbart.
- Standard og fleksibilitet: Oppgradert standard med peis/ovn, varmepumpe, varmekabler, parkettgulv og fliser. Arkitektløsning som muliggjør tilbygg eller endring senere uten å bryte helhetsuttrykket.
Om området
Drangsvann byr på det aller meste: nærhet til natur og turmuligheter, vann og grønne omgivelser – samtidig med god tilknytning til by og service. Her bor du i et felt under utvikling med fokus på kvalitet og langsiktighet. For deg som ønsker stabil boligverdi og et hjem som varer, er dette et svært godt valg.
Spesifikasjoner
- Boligtype: Enebolig, prosjektert, selveier.
- Intern bruksareal (BRA-i): ca. 122 m².
- Totalt bruksareal inkl. uteareal: ca. 144 m².
- Soverom: 3.
- Utgave: Leveres nøkkelferdig med uteområde opparbeidet.
- Status: Salgsstart og byggestart er fastsatt.
Dette er sjansen til å bo i et hjem med herlige kvaliteter, i et nabolag både små og store vil trives i! En bolig med særegen uteplass, arkitektur og gjennomført standard.
Kontakt oss for mer informasjon, prospekt og visning!







