
Benestadsløyfen 5 - 11, 1 solgt!
Moderne kjedet enebolig
Opplev en bolig hvor hver detalj er gjennomtenkt — fire soverom, to bad, loftsstue, garasje — alt i et attraktivt, nyetablert boligfelt.
Høydepunkter
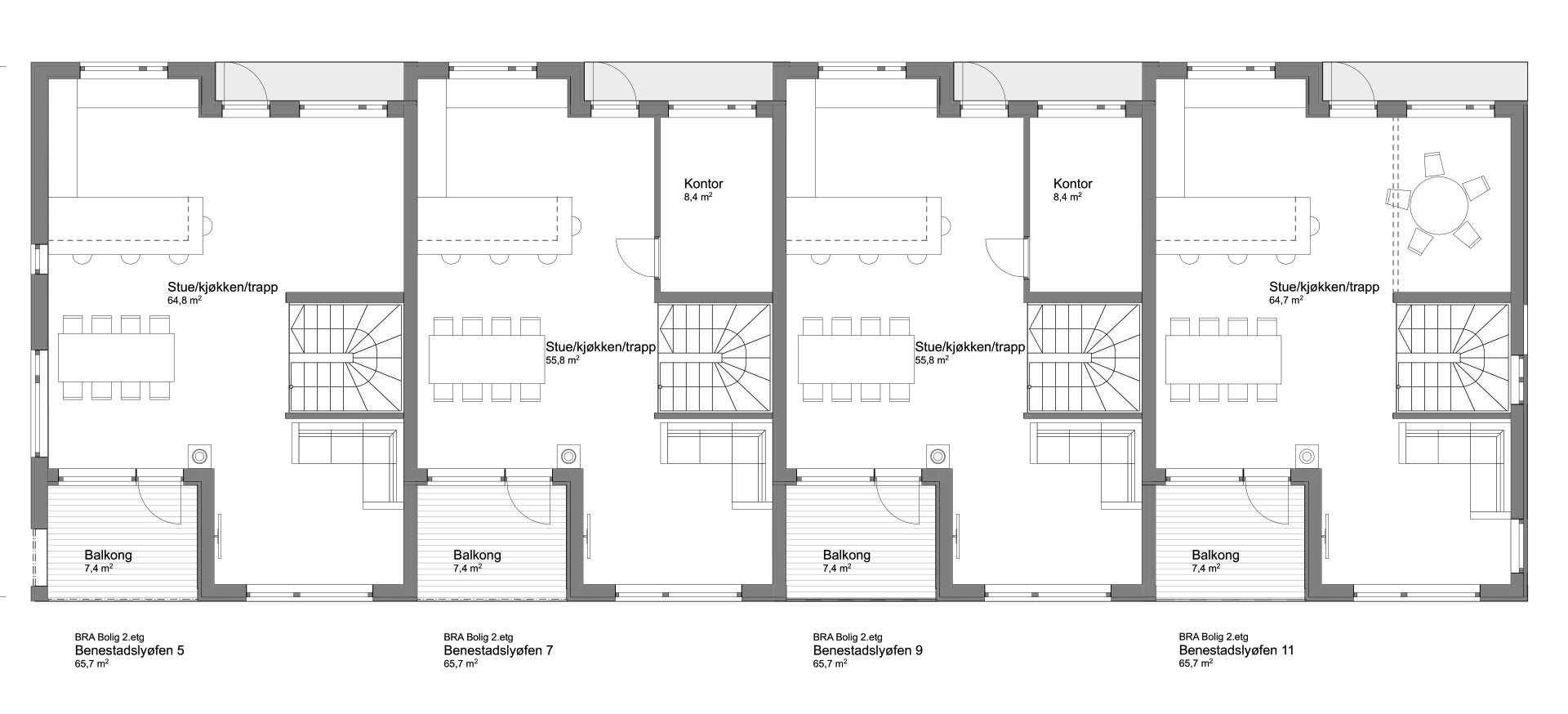
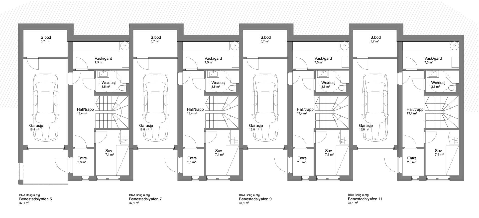
- Kjedet enebolig over tre plan, med ca. 199 – 205 m² BRA-i og fire soverom.
- Stor åpen stue/kjøkken-løsning, to balkonger/terrasser, og direkte utgang til grøntområde bak huset.
- Garasje og carport integrert i løsningen.
- Tomtene er vendt med gode solforhold, nær grøntområder og framtidig aktivitetspark – perfekt for lek og hverdagsliv.
Om området
Drangsvann er et fremtidsrettet boligområde hvor det planlegges for rundt 2 000 boliger og ca. 6 000 beboere. Her vil det komme skole, barnehage, butikk og fritidsområder – samtidig som du er tett på skog, vann og turmuligheter. Boligene på Benestadsløyfen ligger flott til med friområder i bakkant.
Finn ut mer om nabolaget - se https://drangsvann.no/
Spesifikasjoner
- Boligtype: Prosjektert kjedet enebolig
- Soverom: 4
- Intern bruksareal (BRA-i): ca. 199 – 205 m²
- Balkong/terrasse: ca. 11 – 12 m²
- Eieform: Selveier
Din sjanse – ikke gå glipp av det
Dette er en unik anledning til å sikre deg boligkomfort, god planløsning og attraktiv beliggenhet i et område under utvikling. Her får du nøkkelferdig bolig med kvalitet, og med rom for hele familien — eller tilrettelegging for hjemmekontor, hobbyrom eller gjesterom.
Meld interesse for mer informasjon, prosjekt eller visning.











