
Benestadsløyfen 14
Velkommen til denne unike muligheten på Drangsvann
Nå har du muligheten til å sikre deg en enebolig med utleiedel – skreddersydd for akkurat denne tomten – i et av Randesunds mest attraktive områder. Boligen kombinerer moderne komfort med en helt unik beliggenhet og utsikt du sjelden finner maken til.
Utsikt du må oppleve for å tro på:
Fra din fremtidige bolig får du en fantastisk panoramautsikt over vakre Sukkevann og videre ut mot innseilingen og ikoniske Oksøy fyr. Her kan du nyte sola over vannet og følge båttrafikken som passerer i det fjerne – alt fra din egen stue eller hage.
Gjennomtenkt og tilpasset:
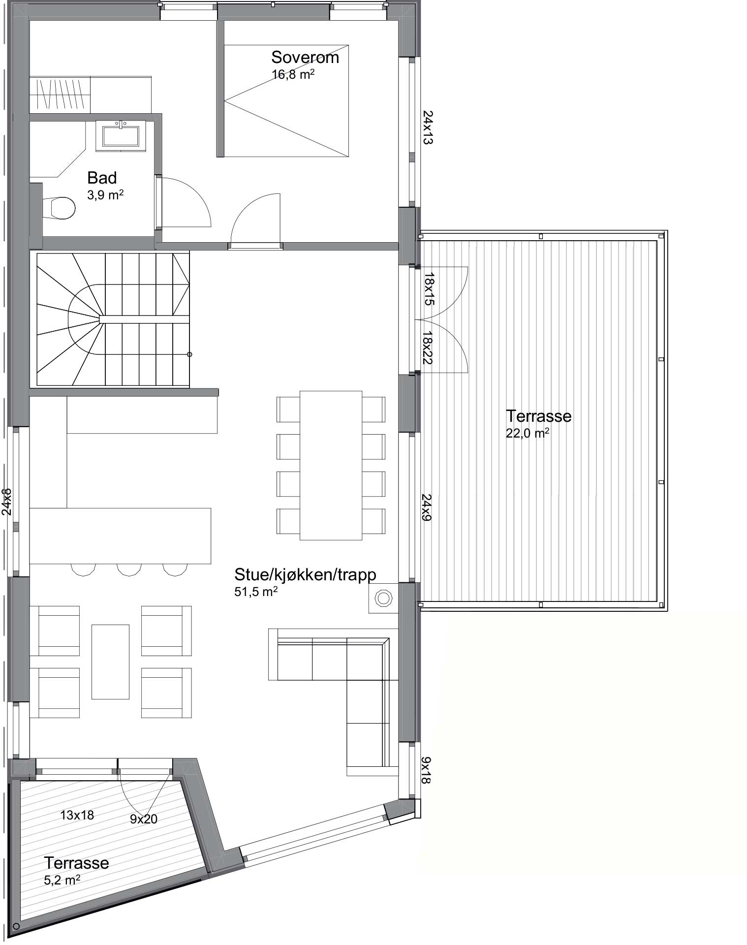
Vi har nå utarbeidet tegninger som er tilpasset tomten og området, og som inkluderer en egen utleiedel – perfekt for deg som ønsker en fleksibel bolig med mulighet for ekstra inntekt. Et inspirerende 3D-forslag følger som vedlegg, slik at du kan få en smakebit på hvordan ditt nye hjem kan bli.
Byggeklar og vakkert plassert:
Tomten er ferdig opparbeidet og klar for bygging. Den ligger høyt og fritt på toppen av Benestadfeltet i Randesund, med flotte solforhold hele dagen og nærhet til både natur og by. Området byr på et levende bomiljø, grønne lunger og kort vei til både skole, barnehage og turstier.
Se for deg å våkne til morgensol og sjøutsikt, nyte rolige kvelder på terrassen, og vite at du bor i en bolig som både dekker dine behov og realiserer dine boligdrømmer.
Vil du vite mer eller avtale visning?
Ta kontakt med oss i dag - så viser vi deg gjerne rundt i området og på tomten!
Finn ut mer om nabolaget - se drangsvann.no



