
Benestadheia 54 - 62, kun 2 igjen!
Velkommen hjem – to unike tomannsboliger øverst i feltet
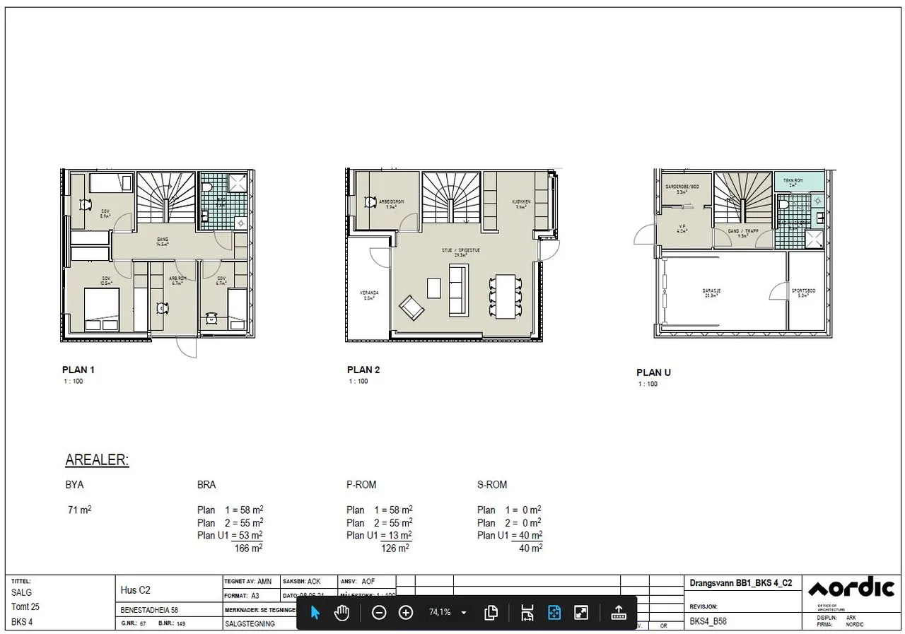
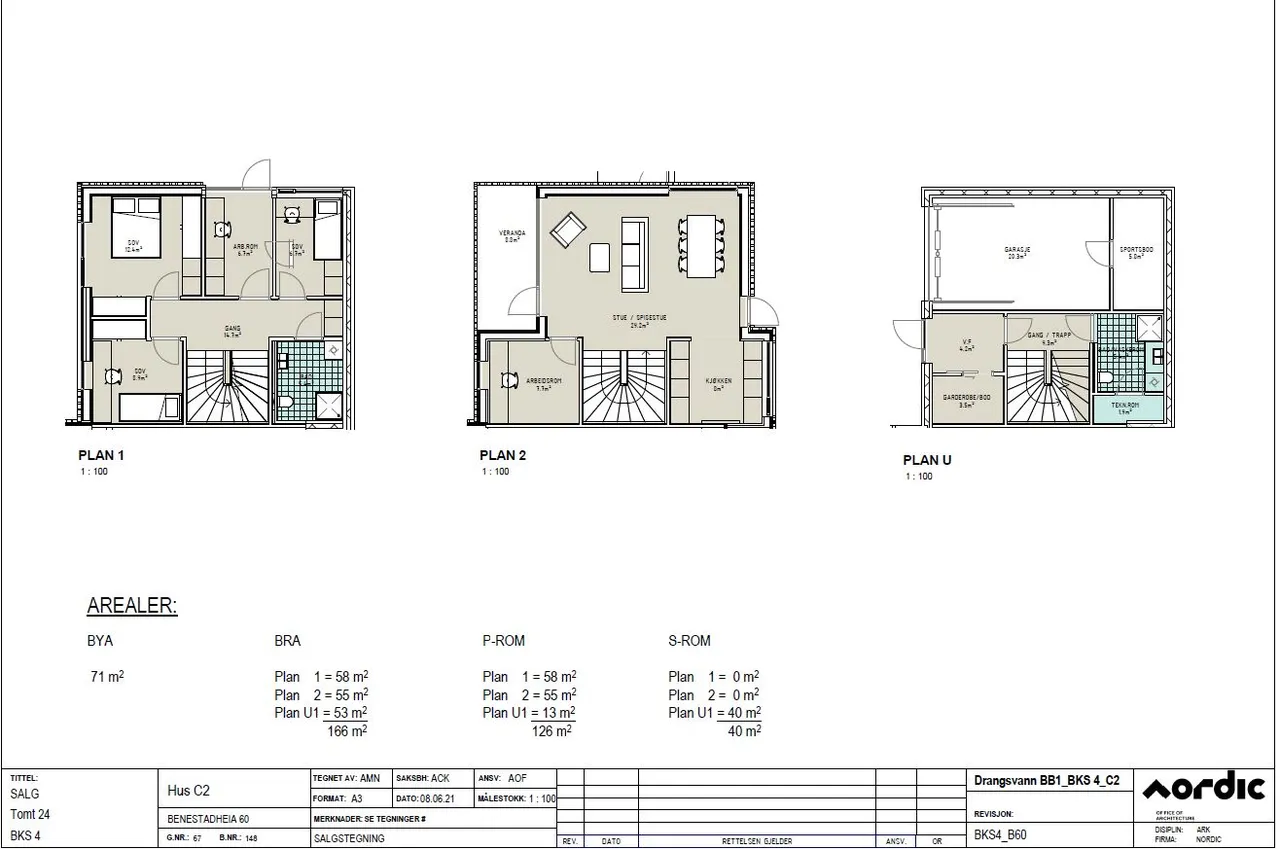
Ønsker du deg en moderne bolig med lys, utsikt og naturskjønne omgivelser – midt i et rolig, barnevennlig område? Her på adressene Beinestadheia 58 og Beinestadheia 60 får du nettopp det. Disse ferdig prosjekterte tomannsboligene tilbyr 126 m² primærrom, praktisk planløsning og vestvendt beliggenhet med sol hele ettermiddagen og kvelden.
Høydepunkter
- Solrik beliggenhet i blindvei – boligene ligger øverst i byggefeltet, på vestsiden, og vendt mot solnedgang og utsikt.
- Barnevennlig ramme – rolig blindvei betyr trygge uteområder, og nærområdet byr på flotte turmuligheter.
- Gjennomført standard og nøkkelferdig leveranse – 1-stav lys eikegulv, fliser i våtrom, hvite slette innerdører, klassiske trelister og trapp med åpne trinn. Kjøkken fra Strai Kjøkken er inkludert med veiledende pris kr 100.000.
- Romslig og fleksibel bolig – 3 soverom, primærrom 126 m², bruksareal 166 m².
- Garasje inkludert – praktisk og etterspurt i området.
Om området
Drangsvann er kjent for sitt naturskjønne miljø og flotte turmuligheter – her får du det beste av boligkomfort med ro og nærhet til naturen. Med boligene plassert øverst i feltet får du god utsikt og et luftig uttrykk. Boligen vil være klar for overtakelse etter byggestart som avtales.
Finn ut mer om nabolaget - se drangsvann.no
Spesifikasjoner
- Boligtype: Tomannsbolig
- Soverom: 3
- Primærrom: 126 m²
- Bruksareal: 166 m²
- Eierform: Selveier
En sjanse du bør gripe
Kun to boliger gjenstår – dette er en mulighet til å sikre seg et hjem som kombinerer høy standard, flott beliggenhet og god verdi. Med ferdig tegnet prosjekt er det enklere å flytte på plass uten å måtte gå veien via store tilvalg og planleggingsprosesser.
Ta kontakt for mer informasjon, prospekt og visning – vi gleder oss til å vise deg hvordan dette kan bli ditt nye hjem.









